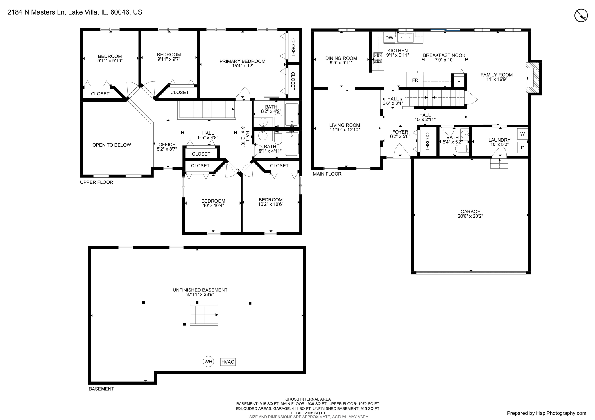
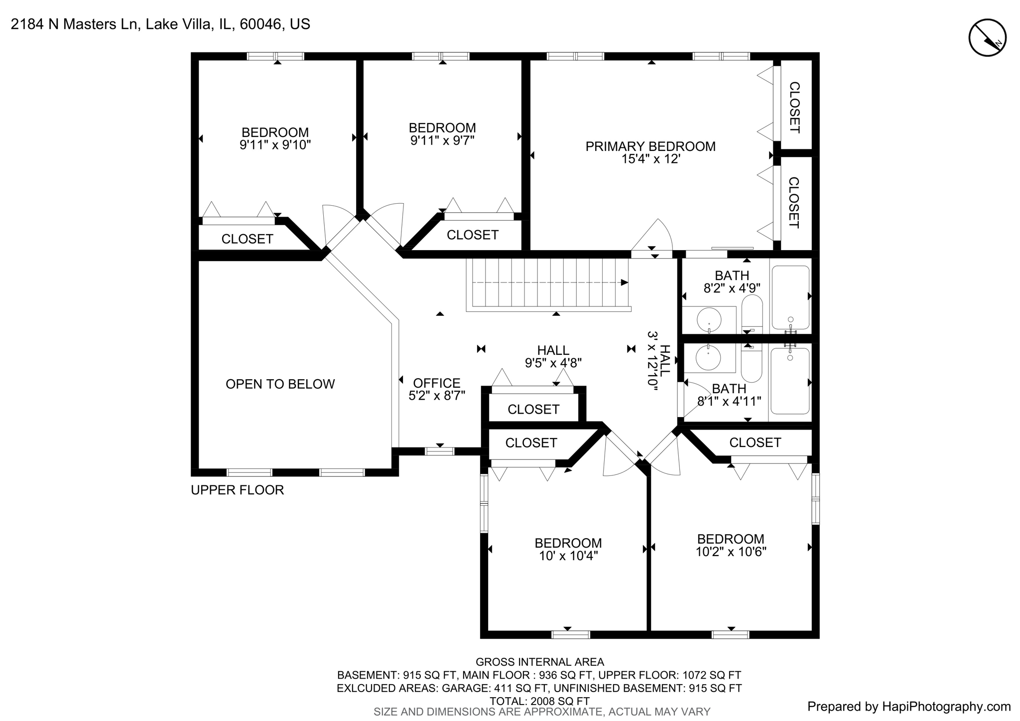
2184 N Masters Ln, Lake Villa, IL 60046
Toggle Navigation
Images
Floor Plans
3D Tour
Map
2184 N Masters Ln
Lake Villa, IL 60046
Scroll to Content
Images
Slideshow
Photo Grid
Hide
Previous
Next
Show more
Floor Plans
Slideshow
Photo Grid
Hide
Previous
Next
3D Tour
Content Coming Soon